18
$2,073,900 Sale
Listed 393 days ago
LOT 39 FRIESIAN Court
· 3+1
· 3.5
· 6
· 4291
Key Facts
Key facts for LOT 39 FRIESIAN Court
Property Type
House, House
Parking
Garage: Yes, 6 parking
MLS #
40639068
Size
4291 sqft
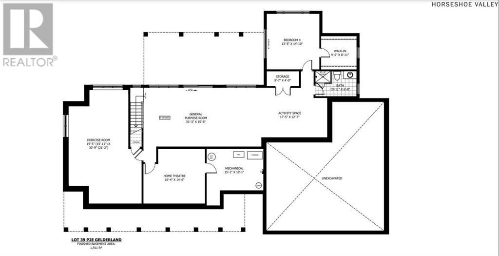
Basement
Finished, Full (Finished)
Listed on
-
Lot size
-
Tax
-
Days on Market
-
Year Built
-
Maintenance Fee
$104/mo
Description
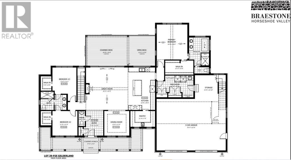
Customized builder home under construction. ACT NOW! You still have time to choose all of your interior colours and materials. This home incorporates many of the changes and structural upgrades discerning purchasers at Braestone have selected, and you can benefit. Move-in Fall 2025 or discuss flexib...le closing date options to suit your needs. This is a fantastic opportunity to move into a brand new home at Braestone and take advantage of significant savings. With interest rates forecasted to continue to lower, now is the time to act. This Gelderland model is situated on a walk-out lot and offers 4,300 s.f. of finished living space with 3+1 bedrooms and 3 ½ baths. Dramatic open concept design. Large windows across back including expansive 16 ft bi-part sliding doors. Walk-out from great room to large covered composite deck with glass framed railing. Vault ceiling in great room with floor-to-ceiling stone fireplace surround. Hardwood plank flooring in main principal rooms. Separate dining room with 10’ coffered ceiling. Stone counters in kitchen with separate walk-in pantry with sink. Bathrooms feature frameless glass showers. Fully finished basement with 9 ft ceilings and large windows. Garage space is equivalent to 3 car with two 10’ wide doors and with stairs up to storage loft above. Central Air Conditioning. Low maintenance James Hardie siding. Full list of standards available. Residents enjoy kms of walking trails and access to amenities on the Braestone Farm for; Pond Skating, Baseball, fruits and vegetables, Maple sugar shack, Artisan farming and many Community & Farm organized events. Located between Barrie and Orillia and approx one hour from Toronto. Oro-Medonte is an outdoor enthusiast's playground. Skiing, Hiking, Biking, Golf & Dining at the Braestone Club, Horseshoe Resort and the new Vetta Spa are minutes away. (id:10452)
Similar Properties (No results)
Room Types
2pc Bathroom
-
Measurements not available
0 sqft
3pc Bathroom
-
Measurements not available
0 sqft
4pc Bathroom
-
Dimensions 8'5'' x 6'0''
50.5 sqft
Listing courtesy of: RE/MAX Hallmark Chay Realty Brokerage
This REALTOR.ca listing content is owned and licensed by REALTOR® members of The Canadian Real Estate Association.